![]()
Kontaktujte nás na čísle
776 389 878
- Úvod
- SPRCHOVÉ KOUTY
- Polysan FORTIS LINE 800mm, boční stěna - FL3580
Polysan FORTIS LINE 800mm, boční stěna - FL3580
- Akce
- Doprava ZDARMA

- Kompletní specifikace
- Komentáře 0
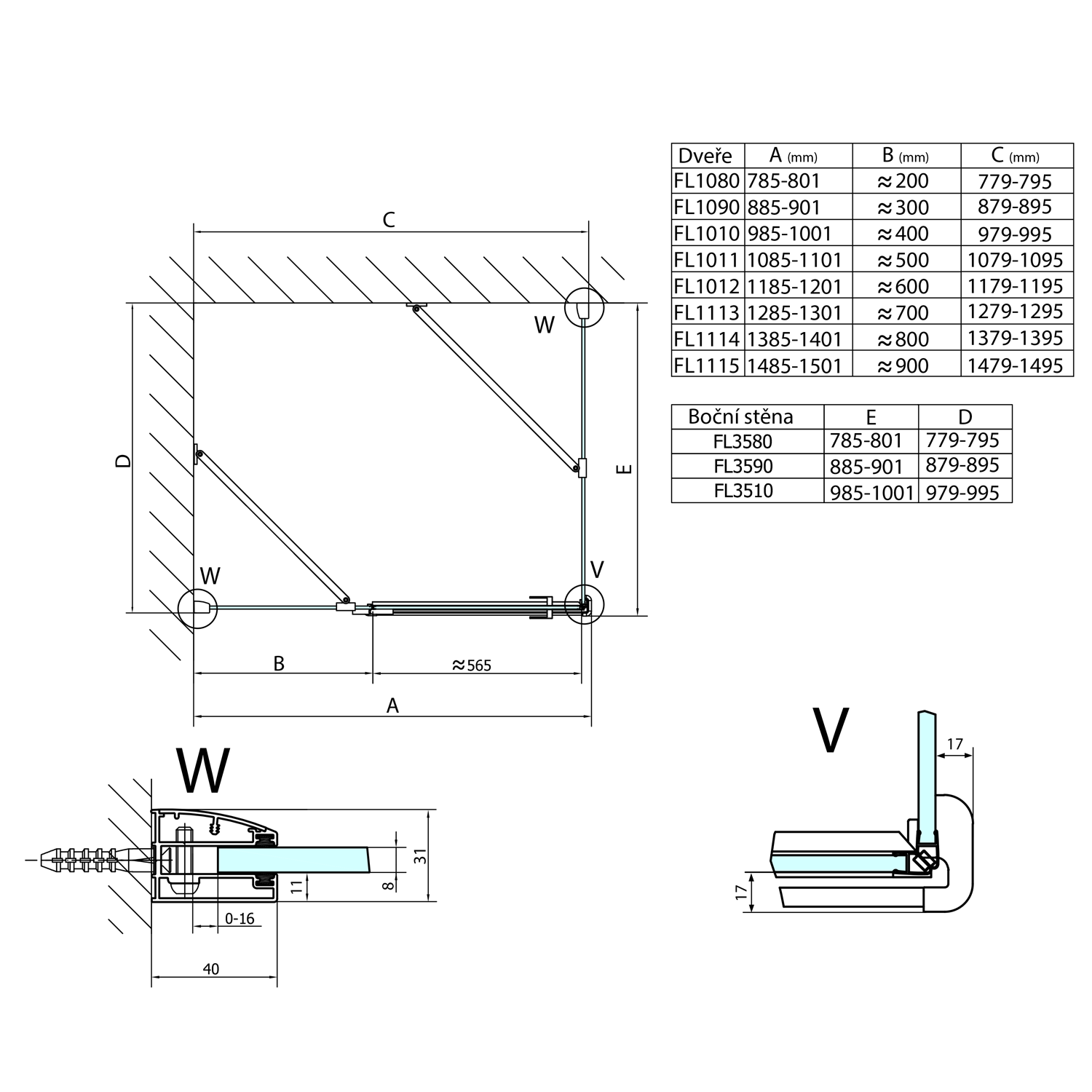
Polysan FORTIS LINE 800mm, boční stěna - FL3580NA CENTRÁLNÍM SKLADĚ - cca 3 pracovní dny6 011 Kč/ ks
- rozměry: 800 mm x 2000 mm, levé
- instalační rozměr 795 +- 10mm
- tloušťka skla 8 mm
- povrchová úprava skla ANTIDROP - povrchová úprava skla pro snadné čištění nanášena na povrch každého skla s použitím nanotechnologi
- K čištění skel doporučujeme čistící a ochranný prostředek - CA-30400
Popis série
Bezrámové pantové zástěny FORTIS LINE v moderním hranatém designu. Minimalistické pochromované panty v nekompromisním hranatém designu, zevnitř zapuštěné pro snadné čištění a se zvedací funkcí pro pohodlné otevírání. Bezpečnostní čiré sklo v tloušťce 8 mm je ošetřené povrchovou úpravou ANTIDROP pro snadné čištění. Výška 2000 mm. Hranaté pochromované madlo ve stejném minimalistickém designu jako panty.
Praktickým doplňkem je možnost nalepení hranatého či kulatého madla na ručník přímo na skleněnou plochu nebo použití závěsných poliček (madla na ručník ani poličky nejsou součástí zástěn). Ke sprchovým zástěnám doporučujeme vaničky z litého mramoru nebo odtokové kanálky.
K čištění skel doporučujeme ASC čistící a ochranný prostředek, 94000.
Celková charakteristika sprchových zástěn série FORTIS LINE:
- Dveře se zdvihovým mechanismem pantu
- Hranaté pochromované panty jsou zevnitř zapuštěné
- Hranaté minimalistické madlo
- ANTIDROP ochrana skel proti usazování vodního kamene a pro snadnou údržbu
- Rohová vzpěra pro vyšší stabilitu je součástí balení, délka vzpěry se liší podle šířky skla
- Snadná montáž pomocí nastavitelného stěnového profilu 0-16 mm
- Hliníková prahová lišta
- Extra čiré magnetické těsnění
- Instalace na vaničku nebo na podlahu
- Splňuje normu EN 14448
![]() | ![]() | ![]() | ![]() |
| Pochromované madlo | Mosazné pochromované panty se zvedací funkcí... | ... z vnitřní strany zapuštěné do skla | Stabilitu zástěn zajišťuje rohová vzpěra |
.jpg?0_235183345)









